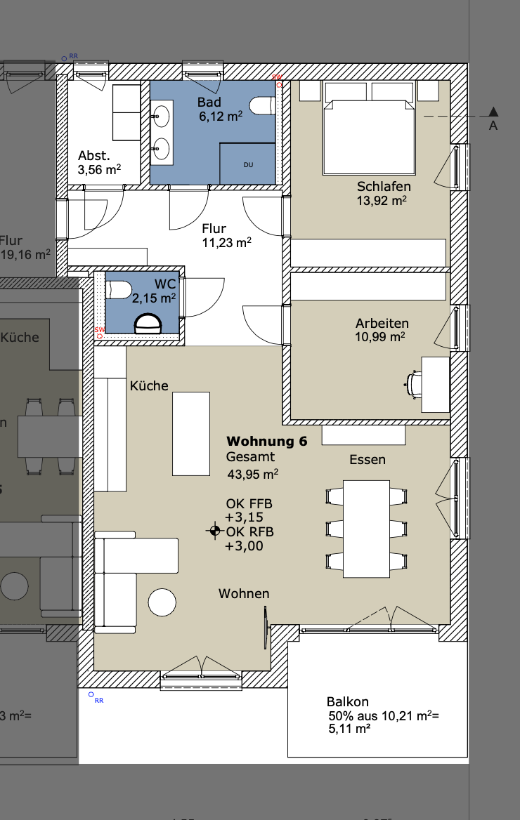
Wohnung 6
535.000 €
3,5-Zimmer | Obergeschoss 1
- Mehrfamilienhaus
- Neubau
- gehobene Ausstattung
- Fußbodenheizung
- Balkon
- KFW 55
- Stellplätze
107 qm
- Wohn- und Esszimmer
- Schlafzimmer
- Arbeitszimmer
- Abstellraum
- Badezimmer
- separates WC
- Balkon

3,5-Zimmer | Obergeschoss 1

Am Alten Donaubad 2
89231 Neu-Ulm
info@eleven-development.com

Copyright 2022 - Eleven Development GmbH All Rights Reserved