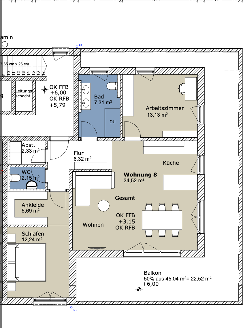
Wohnung 8
785.000 €
4,5-Zimmer Penthouse-Whg. | Obergeschoss 2
- Mehrfamilienhaus
- Neubau
- gehobene Ausstattung
- Fußbodenheizung
- großer Balkon
- KFW 55
- Stellplätze
117 qm
- Wohn- und Esszimmer
- Schlafzimmer
- Arbeitszimmer
- Ankleidezimmer
- Abstellraum
- Badezimmer
- separates WC
- großer Balkon


